Nos réalisations

Projet industriel VRD - extension voirie PL & bâtiment logistique

à Cerizay - Janvier 2023

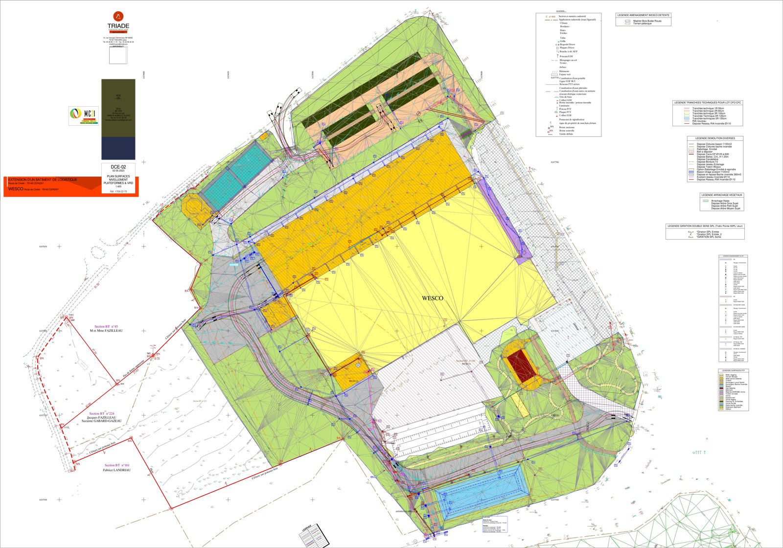
01/2023 : Mission d’Assistance à La Société d’Architecture TRIADE , installée à Thouars (79100) afin de réaliser le projet d’extension d’un bâtiment logistique pour le compte de la Société WESCO de Cerizay (79140).

La mission consiste à la Conception de la réalisation des plateformes de terrassement pour les Bâtiments Logistiques, les voiries PL et parkings VL, le calcul et la gestion du bassin d’orage pour les extensions avec la notice Hydraulique du projet pour validation, Conception des nouveaux réseaux EP, des allées piétonnes aux normes PMR, pour les phases APD PRO DCE ACT et VISA EXE.

Chantier en cours de réalisation

Projet industriel VRD - extension voirie PL & bâtiment logistique